Skypark Aurora 2 BR 2Ax1 Golf side | Condo in Choeng Thale

2 Bedroom Condo in Laguna, Choeng Thale
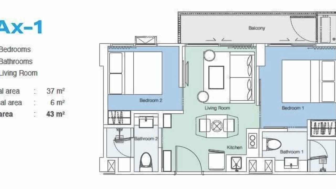
Summary:
Welcome to our 2-bedroom, 2-bathroom Skypark Aurora apartment. Located in a modern low-rise building surrounded by lush greenery, this stylish unit offers breathtaking views of Laguna Phuket’s golf course and tropical landscape. Situated in the heart of Laguna Phuket, it provides easy access to pristine beaches, the championship Laguna Golf Course, and premier shopping, dining, and entertainment destinations like Boat Avenue and Central Porto de Phuket.
The Space:
This thoughtfully designed 43 sqm apartment features a well-planned open living space that seamlessly integrates the living room, kitchen, and dining area. The two bedrooms provide a comfortable retreat, each with access to a private or shared modern bathroom. A spacious 6 sqm balcony extends the living area, allowing you to unwind while enjoying serene views. With 37 sqm of internal space, this apartment is ideal for small families, couples, or investors looking for a high-demand rental property within Laguna Phuket’s exclusive community.
Guest Access:
You will have private access to your 2-bedroom, 2-bathroom apartment, including all internal spaces such as the living room, kitchen, and both bedrooms. The unit also boasts a private balcony, perfect for relaxation. Additionally, guests can enjoy shared Skypark Aurora amenities, including a rooftop infinity pool, fitness centre, co-working spaces, and beautifully landscaped gardens. The building offers secure access and a hassle-free check-in experience, ensuring a comfortable and enjoyable stay.
The Neighborhood:
Situated in the serene Laguna Phuket area, Skypark Aurora Residences is surrounded by stunning lakes and lush greenery, offering a peaceful environment for relaxation. The neighborhood is renowned for its proximity to some of Phuket's best attractions, including pristine beaches, fine dining, shopping, and recreational activities.
Boat Avenue: Just 1.6 kilometers away, Boat Avenue is a lively shopping and dining destination, featuring a mix of trendy boutiques, gourmet restaurants, and a bustling weekly market, where you can find fresh produce and unique crafts.
Bang Tao Beach: Located only 900 meters from Skypark Aurora Residences, Bang Tao Beach is one of Phuket's most beautiful beaches, known for its wide shoreline, clear waters, and tranquil atmosphere, perfect for a relaxing day by the sea.
Laguna Phuket Golf Club: Just 1.5 kilometers away, Laguna Phuket Golf Club is a premier golfing destination nestled in lush tropical landscapes, offering a world-class golfing experience with breathtaking views.
Blue Tree Phuket: Situated 3.6 kilometers from the residence, Blue Tree Phuket is a top entertainment complex with a massive lagoon, exciting water slides, adventure activities, and various dining options, making it an ideal spot for family fun and adventure.
Getting Around:
Transportation is straightforward and convenient, with taxis and rideshares readily available. The residence is also well-connected to major roads, making it easy to explore the surrounding area. For those who enjoy a more active approach, bicycles can be rented locally, providing a great way to experience the beauty of the area at your own pace.
Other Things to Note:
The residence is family-friendly but does not accommodate pets. Smoking and parties are not allowed within the property. Quiet hours are observed from 10:00 PM to 9:00 AM. Please be advised that construction activities have commenced around the residences. These activities are scheduled from Monday to Saturday, between 8:00 AM and 5:00 PM. During these hours, you may experience some noise and occasional particles in the air. We are committed to ensuring your stay remains comfortable and appreciate your understanding as we work to enhance our surroundings.
Interaction with Guests:
Our team is dedicated to ensuring your stay is as comfortable and enjoyable as possible. While we do not offer direct concierge services, we have connections with local providers who can assist with arranging activities, reservations, and other personalised services. Our 24/7 customer service is always available to assist with any inquiries or special requests.
This 2 Bedrooms Condo provides accommodation with Balcony/Terrace, Wellness Facilities, Laundry, for your convenience. This Condo features many amenities for guests who want to stay for a few days, a weekend or probably a longer vacation with family, friends or group. The rental Condo has 2 Bedrooms and 2 Bathrooms to make you feel right at home.
Check to see if this Condo has the amenities you need and a location that makes this a great choice to stay in Laguna. Enjoy your stay in Laguna at this Condo.
Amenities
Facility Overview
-
Air conditioning
-
Towels provided
-
Shower
-
2 bathrooms
-
Hair dryer
-
Bed sheets provided
-
2 bedrooms
-
Toaster
-
Refrigerator
-
Microwave
-
Cookware/dishes/utensils
-
Near coin laundry
-
Laundry facilities
-
Onsite parking
-
No pets allowed
-
Elevator
-
Smoke-free property
-
Water park
-
Horse riding nearby
-
Theme parks nearby
-
Golf privileges
-
Cycling nearby
-
TV
-
Unit size: 463 sq ft (43 sq m)
-
Next to a golf course
-
Iron/ironing board
-
WiFi available
-
Garden
-
Balcony
-
Carbon monoxide detector not reported (host has not indicated whether there is a carbon monoxide detector on the property; consider bringing a portable detector)
-
Smoke detector installed (host has indicated there is a smoke detector on the property)
-
Fire extinguisher
-
Shared/communal pool
Policies
Extra-person charges may apply and vary depending on property policy government-issued photo identification and a credit card, debit card, or cash deposit may be required at check-in for incidental charges host has indicated there is a smoke detector on the property host has not indicated whether there is a carbon monoxide detector on the property; consider bringing a portable detector with you on the trip onsite parties or group events are strictly prohibited safety features at this property include a fire extinguisher special requests are subject to availability upon check-in and may incur additional charges; special requests cannot be guaranteed this property accepts cash this property is managed through our partner, vrbo. you will receive an email from vrbo with a link to a vrbo account, where you can change or cancel your reservation